Réhabilitation du “Palais des hirondelles”, Barby
- 3 . réhabilitation
épure
Barby (73)
–
535 m² (surface habitable)
2015 / 2018 (chantier livré)
résumé :
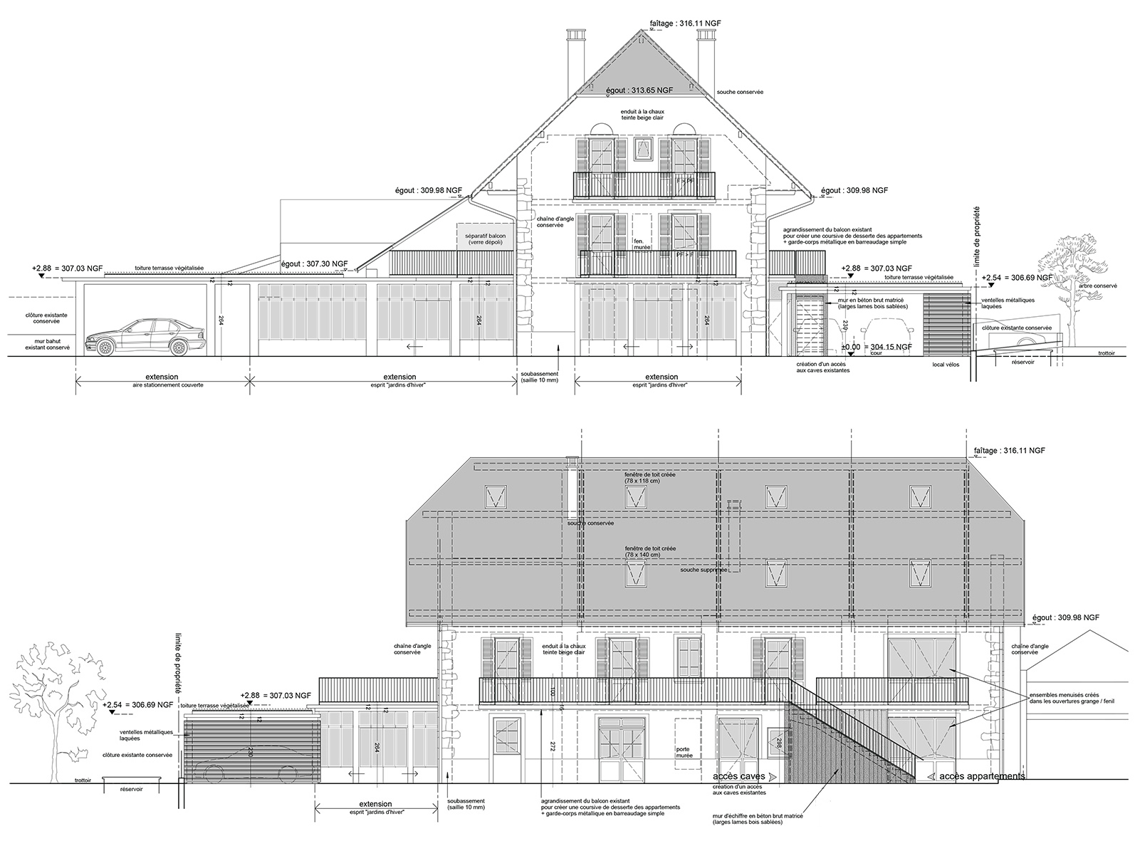
Le “Palais des hirondelles” fait partie des dernières anciennes fermes, encore présentes dans le centre actuel de la commune de Barby.
Le projet se propose de réhabiliter le bâtiment, en conservant et en mettant en valeur les éléments architecturaux qui le caractérisent, tout en faisant cohabiter des extensions modérées, conçues en harmonie avec l’existant.
Le projet se compose de deux entités indépendantes, regroupées dans un même volume :
- Appartement rez-de-chaussée
Le rez-de-chaussée est occupé par un appartement en colocation pour jeunes handicapés, organisé autour de 4 chambres et de nombreuses pièces à vivre.
Un nouvel espace de vie est imaginé en façade Sud (séjour), tandis que la desserte des pièces dissimulées dans le volume existant s’opère par une fine extension en façade Ouest.
- Appartement étages
En étages, 4 appartements de type 4 prennent place dans les 4 travées existantes du bâtiment.
Ces logements s’organisent en triplex, afin de profiter au maximum de la volumétrie (notamment sous charpente) et de simplifier le traitement de l’acoustique entre appartements.
Chacun bénéficie d’une entrée indépendante depuis la coursive de desserte située au R+1. Celle-ci prend la place du balcon existant et est accessible par un escalier créé discrètement en façade Est.
Les appartements sont agrémentés de terrasses créées, de facto, sur les extensions du rez-de-chaussée.
Le bâtiment du “Palais des hirondelles” est restauré selon les techniques et teintes originelles.
L’escalier d’accès est protégé par un mur d’échiffre rampant, réalisé en béton armé banché par de larges lames de bois préalablement sablées (largeurs aléatoires), rappelant l’esthétique des portes de grange.
Les extensions mesurées du bâtiment existant sont traitées dans un esprit de “jardins d’hiver”, marqué par des châssis étroits posés sur une allège basse continue.









