Réhabilitation d’une maison ancienne à Villarivon, Les Chapelles
- 3 . réhabilitation
épure
Les Chapelles (73)
–
–
2023 / 2024
résumé :
Ce projet porte sur la réhabilitation d’une maison ancienne, située au cœur du hameau de Villarivon, sur la commune des Chapelles. Le bâtiment a accueilli l’école du hameau de Villarivon, autour d’une salle de classe et du logement de l’instituteur, jusque dans les années 60. Il a été vendu par la commune des Chapelles en 2014.
Le bâti environnant se compose de fermes et maisons anciennes, implantées densément autour de la chapelle saint Luc. Il est caractérisé par une très belle ferme, transformée au cours des siècles en maison bourgeoise par la famille Jarre, propriétaire de nombreux alpages, et protégée au titre des monuments historiques depuis 2006.
Le projet se propose de poursuivre les travaux de restauration et de réhabilitation, initiés par les précédents propriétaires depuis la cession du bâtiment par la commune. Ils s’articulent autour de l’aménagement d’un seul logement dans l’emprise des espaces disponibles.
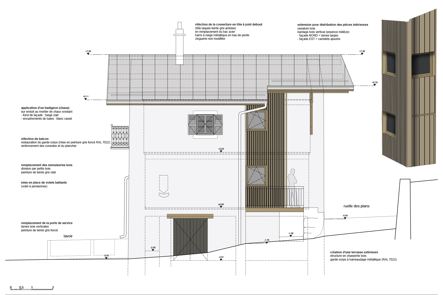
Les façades ont fait l’objet d’une réfection de l’enduit avec la mise en œuvre d’un enduit traditionnel à la chaux. Les encadrements ont été marqués par une légère surépaisseur. L’enduit n’a pas été teinté par la mise en œuvre d’un sable coloré et/ou de pigments. Il est donc nécessaire d’appliquer un badigeon de chaux pour teinter les façades et protéger l’enduit.
Le projet comprend donc le remplacement des bacs aciers de la toiture par une couverture en tôle à joint debout, laquée de teinte gris ardoise.
Le balcon fait l’objet d’un renforcement de ses frêles poutres métalliques ancrées dans la maçonnerie de façade. Il est proposé d’ajouter des jambes de force pour accroitre la stabilité de l’ouvrage. Le garde-corps en ferronnerie, en bon état, est restauré.
Les menuiseries sont remplacées à l’identique, en bois, reprenant la même configuration des vitrages, marquée par la mise en œuvre de petits bois. La pose en feuillure des fenêtres existantes est reconduite, tandis que la largeur des dormants est également maîtrisée. Les ouvertures sont occultées par des volets battants à persiennes, selon le modèle encore visible sur la fenêtre de la façade EST.
EXTENSION
Le projet propose également une modeste extension, implantée dans le renfoncement NORD-EST, pour marquer l’entrée du logement, permettre la communication entre pièces et créer un espace extérieur.
Cette extension occupe l’emplacement de l’échelle de meunier extérieure qui desservait l’étage mais qui ne peut être conservé (trop raide), remplacée par un escalier intérieur.
Afin de marquer cette intervention et la distinguer de la restauration du bâti originel, il est proposé d’adopter un langage discrètement contemporain, en déclinant le bois, matériau très présent dans l’architecture vernaculaire.
La façade de l’entrée (NORD) s’habille de planches verticales jointives de forte largeur, laissant leur champ visible en façade latérale (EST), qui se poursuit par un parement en carrelets (de même largeur que le champ, posé à claire-voie devant un pare-pluie noir.







