Réhabilitation d’une maison ancienne en Savoie
- 3 . réhabilitation
épure
Savoie (73)
–
180 m² (surface habitable)
2015 2017 (livraison)
résumé :
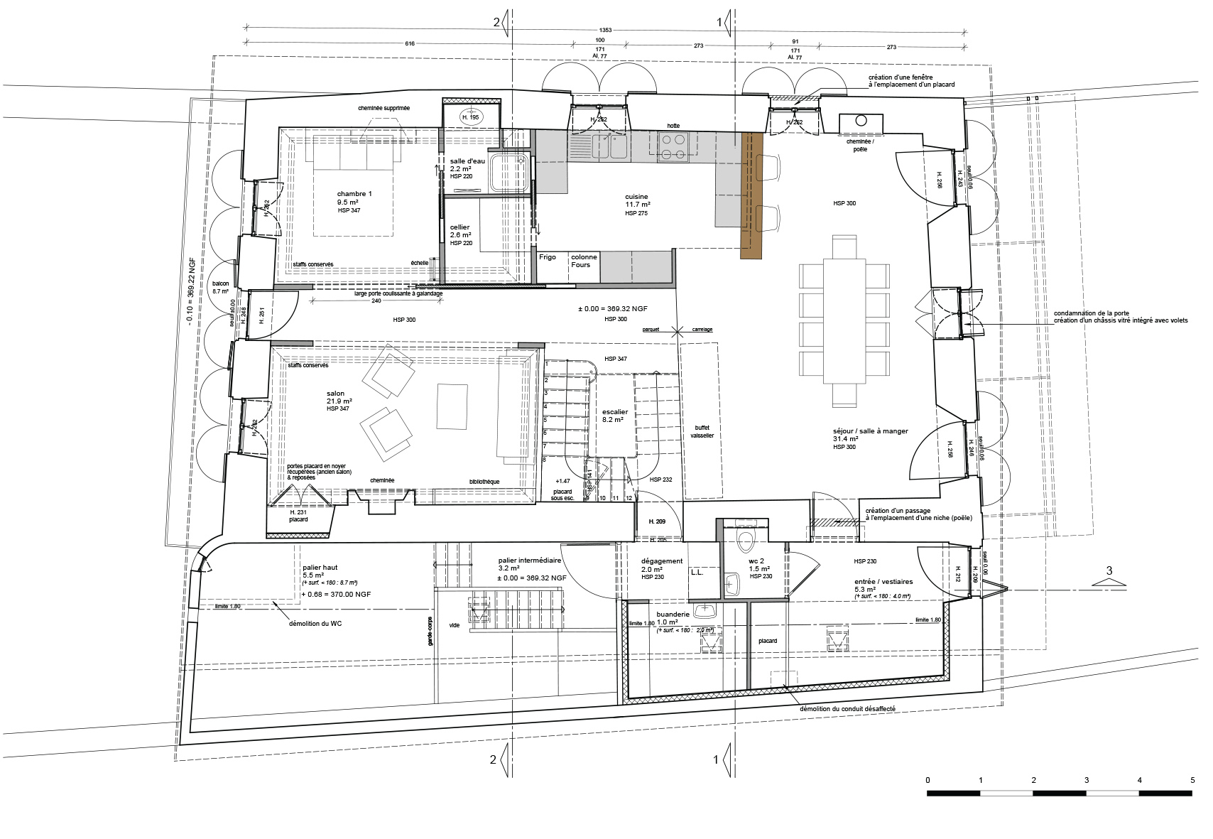
Le projet de réhabilitation de cette maison ancienne aux éléments patrimoniaux indéniables, s’articule autour de l’escalier conservé et mis en valeur, destiné à desservir les deux niveaux du futur duplex.
Le niveau rez-de-jardin subit un profond remaniement.
L’ancienne cuisine accueille les espaces servants, avec notamment l’entrée de l’appartement, couplée à des wc et de nombreux espaces de rangement. En retrait, une buanderie prend place, en lien direct avec l’escalier conservé qui rejoint le niveau intermédiaire.
En connexion avec l’entrée, un grand espace de vie est aménagé. Il accueille un vaste séjour centré sur un coin repas. Il bénéficie d’une fenêtre supplémentaire créée en façade Nord à l’emplacement d’un placard. Ouverte sur le séjour grâce à un comptoir de bar, la cuisine profite d’une fenêtre existante et dispose d’un cellier attenant. Les équipements hauts (fours, frigo) sont dissimulés derrière un retour de cloison qui sert à intimiser la cuisine par rapport au reste de l’espace de vie.
L’escalier conservé donne directement sur l’espace de vie. A ses pieds, il dessert également deux pièces imaginées dans les volumes du cloisonnement conservé. Un salon / bibliothèque se love contre l’escalier et bénéficie de transparence depuis l’espace de vie. En face, largement ouvert grâce à une imposante porte coulissante, un espace supplémentaire offre un double usage : chambre d’ami ou second salon, complété par une salle d’eau fonctionnelle
Ces deux pièces se parent des menuiseries et des staffs conservés, témoins de l’intérêt patrimonial de la maison, tout en contrastant avec l’aménagement moderne imaginé pour l’espace de vie contigu.
Le niveau combles s’organise autour de la charpente conservée. Le cloisonnement s’appuie sur les fermes existantes pour créer les espaces de nuit souhaités. Les volumes se prolongent jusqu’au faîtage. Des espaces servants (salle de bains, wc séparés et dressing) complètent l’aménagement. Les parquets sont conservés, tandis que la charpente est mise en valeur dans l’agencement intérieur.











