Restauration du pont dormant de la redoute Marie-Thérèse, Avrieux
- 2 . restauration
épure Dominique PERRON
Apremont (73)
70 000 € HT
–
2018 / 2019
cadre : épure (en collaboration avec Dominique PERRON, architecte du Patrimoine)
résumé :
La Redoute Marie Thérèse est classée au titre des Monuments Historiques, par arrêté du 30 décembre 1991.
La Redoute Marie-Thérèse est l’un des cinq forts qui compose la barrière de l’Esseillon, située en Haute-Maurienne. Cet ensemble fortifié a été construit par le Royaume de Piémont-Sardaigne au début du XIXè siècle.
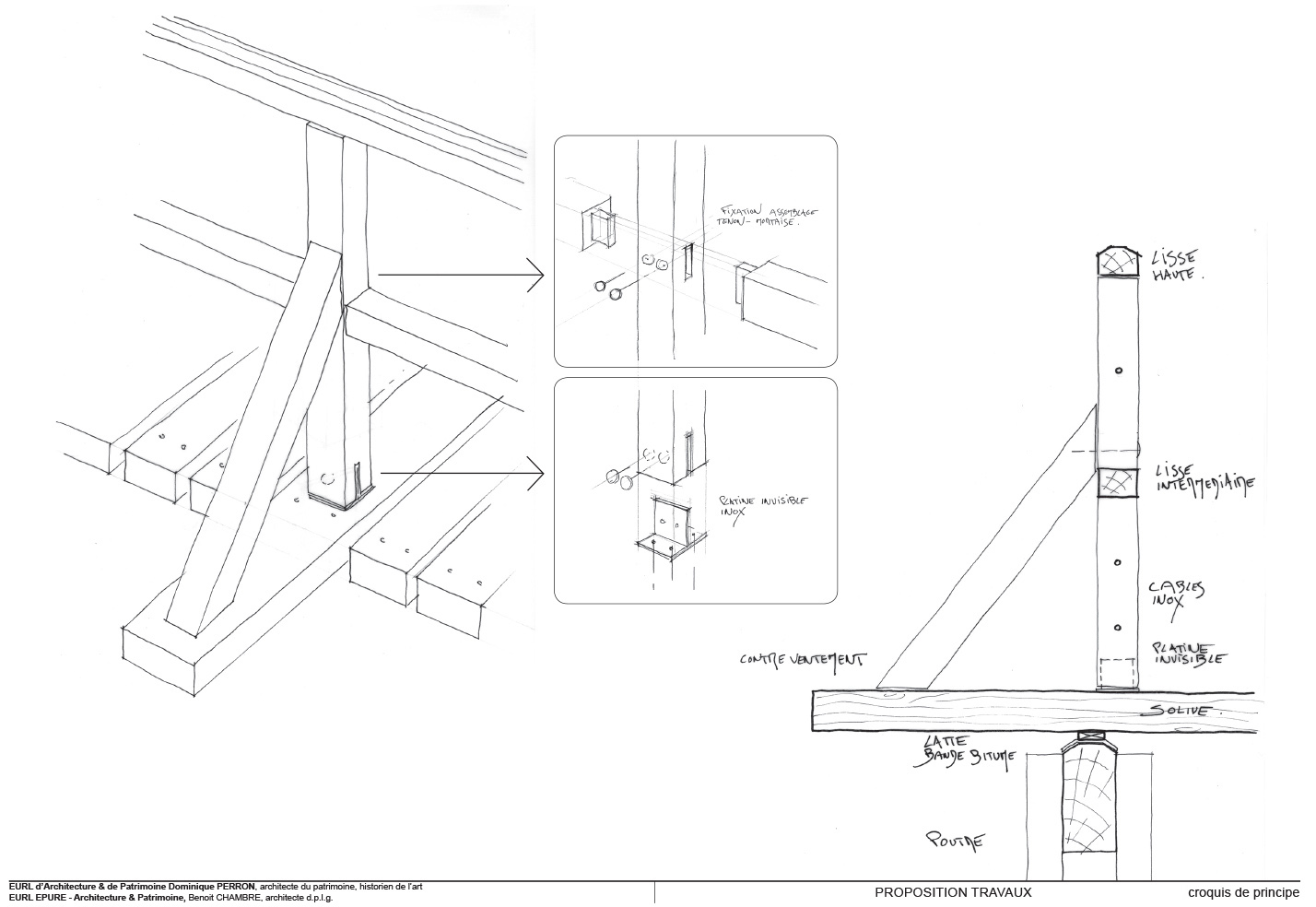
L’édifice est construit en forme de fer à cheval, un peu à la manière d’une tour d’enceinte médiévale ouverte à la gorge. L’entrée au nord s’effectue par un pont dormant en bois suivi d’un pont-levis. Il s’appuie sur une structure composée de deux piles maçonnées, dont l’une d’elles vient s’aligner avec le pont-levis de la redoute. Le tablier du pont est constitué d’un ensemble de solives transversales supportées par des poutres longitudinales portant de pile à pile, et renforcés par des consoles s’ancrant dans les flans des piles.
Malgré une restauration relativement récente (pour ce type d’ouvrage), le pont dormant présentait des désordres importants sur les solives et les poutres (pourrissement).
Le projet prévoit une restauration, dans le respect de la conception originelle, avec toutefois des améliorations destinées à accroître la durabilité de l’ouvrage : suppression du chasse-roue susceptible de retenir l’eau de pluie, protection accrue des poutres, …







