Restauration d’un chalet d’alpage 1, Les Allues
- 2 . restauration
épure
Les Allues (73)
–
107 m² (surface plancher)
2017 / 20182019 (livraison)
résumé :
Ce chalet fait face à la station de Méribel. Au coeur d’un hameau ruiné, il marque le paysage comme un témoin historique de l’exploitation ancestrale des alpages.
Le projet s’articule autour de la restauration totale du chalet et de la volonté de préserver intégralement les qualités architecturales et patrimoniales du chalet.
Programme de travaux :
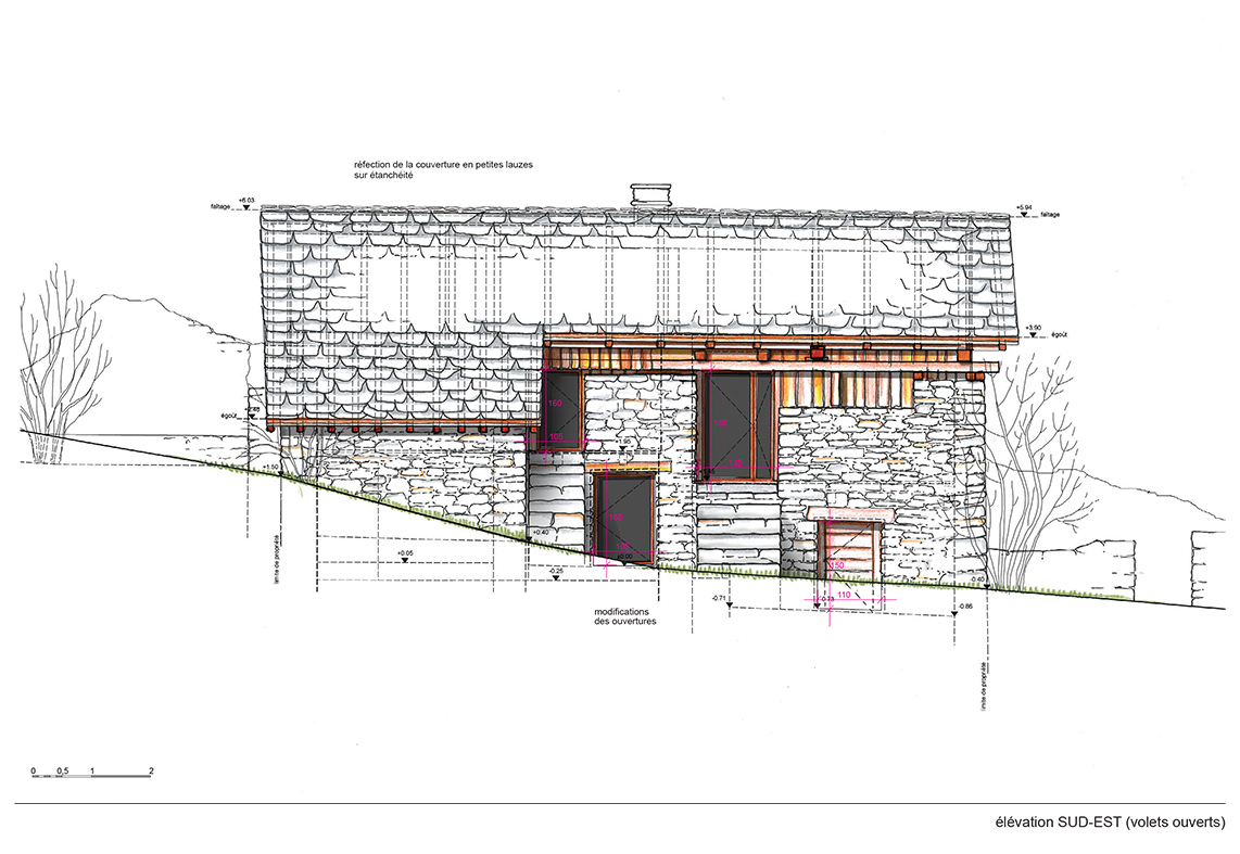
A. Réfection de la couverture
B. Mise en oeuvre d’un drain
C. Restauration des façades
D. Modification d’ouvertures
Le projet propose de conserver intégralement l’ensemble des portes, en les transformant en volets extérieurs, tout en intégrant des portes-fenêtres vitrées à l’intérieur.
La partie sommitale des pignons est habillée d’un mantelage rustique en planches de mélèze, agréablement parées d’une belle patine.
Pour faire rentrer la lumière au coeur du chalet, il est proposé de créer des ouvertures largement vitrées disposées en retrait des fermes des deux pignons. Pour en assurer une insertion la plus discrète possible, le projet propose de les dissimuler derrière des volets pivotants constitués d’un cadre réalisé en cornière métallique recevant un remplissage en bois composé des planches de bardage récupérées. En position fermée, la perception du mantelage bois est scrupuleusement préservée. Tandis qu’en position ouverte, les surfaces vitrées se cachent derrière un alignement ajouré.
Les pièces présentées sont tirées de la demande d’autorisation préfectorale de restauration d’un ancien chalet d’alpage.







